Design Studio 2013-2016
Course Description
Students took this high-rise studio concurrently with a structures class. The co-requisite relationship between the design studio and structures class placed an emphasis on the thoughtful integration between architecture and structure.
The design studio questioned the current typology of the tall building, identified its limits, and proposed new ways for the tower to engage the city. The structures class encouraged an intuitive understanding of structural behaviors. Physical models were subjected to load tests to the point of failure to reveal the relationship between building geometry and structural behaviors. Structural vulnerabilities were assessed for their potential to offer spatial experiences.

Effervescent Voids 
Layered Boundaries 
Voids in Relationship to Envelope
High-Rise Typology
The skyscraper is a building type that was theorized in Europe and first constructed in the US about a hundred years ago. Each skyscraper is an amalgamation of the cultural and technological issues dominant at the time of design and construction. They are each a manifesto, a utopian proposal for how we could live differently. From the Empire State Building, to the Seagram Building, to the fallen World Trade Center Towers, the skyscrapers take on a cultural role specific to the era. Today’s prevalent high-rise building type is outdated. We questioned the structural system of the single central core with perimeter moment frames, hermetically sealed glass curtain walls without integrated shading systems, and repetitive floor plates.






Urban Presence
The contributions of POPOS (Privately Owned Public Open Spaces) to the urban vitality in downtown San Francisco informed how public spaces could be introduced within the tower and at the street level. We looked for opportunities for the tower to offer new urban experiences beginning with a critique of the unsuccessful public spaces near the site. The critique specifically evaluated Street Walls, Urban Rooms, and the Human Scale.
Site and Program
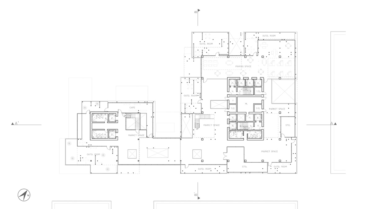
The Mid-Market area in San Francisco is undergoing a transformation dubbed the “Twitter Effect.” The site was located in this area at the corner of Market and 8th Street. The mixed-use tower housed NREL, the renewable energy research arm of the DOE, with the primary goal of engaging and educating the public. The building provided laboratory facilities for scientists, encouraged partnerships with renewable energy start-up companies, and raised public awareness through education.
The environmental stewardship informed how energy management within the building could be made visible to encourage engagement with the public. Passive systems such as solar orientation, shading devices, thermal mass, and natural ventilation were prioritized.
Energy analysis tools such as Solar Preview in Revit and Autodesk Flow were used to inform building orientation and massing.
The following program list served as a foundation to accommodate each student’s program agenda based on individual research: Lobby, Offices, Laboratory, Event Spaces, Auditoriums, Public Open Spaces, Public Education Facilities, Retail, Café/Restaurant, Back of House, Mechanical, Basement (Parking, Loading dock).





