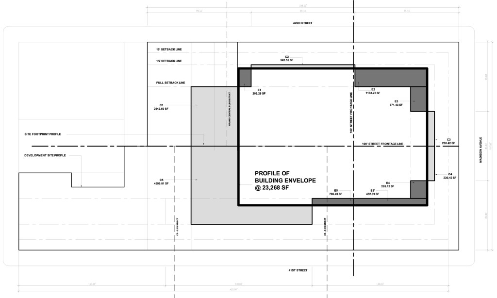
300 Madison, New York City
1.2 million sq ft, 535 ft (35 floors), $350 million, 2003
The North American Headquarters for CIBC (Canadian Imperial Bank of Commerce) explores patterning effects on the facade to relieve the strict massing limitations imposed by NYC zoning laws. In mid-town Manhattan, at 42nd Street and Madison Avenue, the repetitive components of the curtain wall system are used to generate an undulating field condition stretched over the surfaces of a 35-story building.

Inspired by Op-Art of the 60’s, small curtain wall elements act as agents for incremental change that yield a cumulative effect to animate the building envelope. The reflections and shadows of stainless steel components, merely inches long, repeat at a different frequency from the curtain wall module to pulsate across the facade responding differently to changing light conditions throughout the day.



Bridget Riley Deny 2, 1967 – Incremental changes over a static field amplifies fluidity.

Stainless steel elements create a pattern by taking advantage of the inherent repetition of a unitized curtain wall system. Shadows and reflections of the stainless steel inserts animate the surface.












The tower was conceived as stone spandrels and ribbon windows in an aluminum mullion curtain wall system. After extensive studies in patterning and configurations, the components that implement this optical effect were identified as vertical stainless steel fins with a random orbital finish and mirrored stainless steel inserts within the stone spandrel panels. Both elements are spaced at different intervals while still working within the module of the curtain wall system. The reflectivity, shadows, and transparencies from the combination of the curtain wall materials and patterning elements create a pulsating frequency across the faƧade during the changing lighting conditions throughout the day.
The context of the site being cluttered with visual noise, the podium was expressed as a floating glass box to distinguish the building along 42nd Street and Madison Avenue. Within the shadow box spandrel in the podium, another layer of complexity is added by continuing the fabric of the tower using stainless steel fins behind the glass. During the different lighting conditions, the patterning of the podium curtain wall animate the glass box in concert with the tower curtain wall pattern above. (excerpt from SOM Journal)


Project Team Design Partner Roger Duffy Managing Partner TJ Gottesdiener Project Manager Hamid Kia Senior Specifications Writer Herb Lynn Senior Technical Coordinator Mark Igou Techinical Coordinator Angelo Arzano Senior Designer John Durschinger Design Team Samer Bitar Nick Cotton Dan Gonzalez Malin Hedlund Miki Iwasaki So Young Kim Scott Murray Dai-Yi Ou Karen Seong Tom Turturro Technical Team Douglass Alligood Carlos Avila Holly Carson Jeffrey Feingold Ivan Gartner Kyle Henderson Sang Wook Jin Todd Lent Maurizio Manzo John McNulty Anna Pieczara-Blanchfield Christian Schreib Karen Seong Robert Simmons Brian Tierney Planning/Zoning Team Peter Brassard Lois Mazzitelli
Consultants Structural Gilsanz Murray Steficek LLP Mechanical Electrical Plumbing & Fire Protection Jaros Baum & Bolles Civil Vollmer Associates Foundation Mueser Rutledge Consulting Engineers Exterior Envelope Israel Berger & Associates, Inc. Lighting Kugler Tillotson Associates Code Jerome S. Gillman Consulting Architects Building Hardening/Security Weidlinger Associates Window Washing Enteck Engineering, LLP Door Hardware Essex Industries



